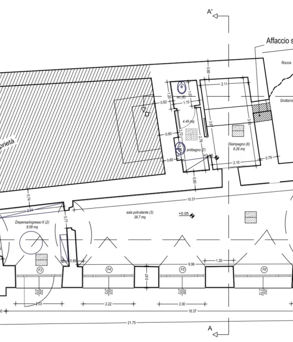
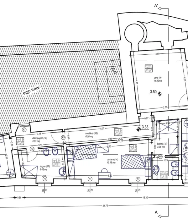
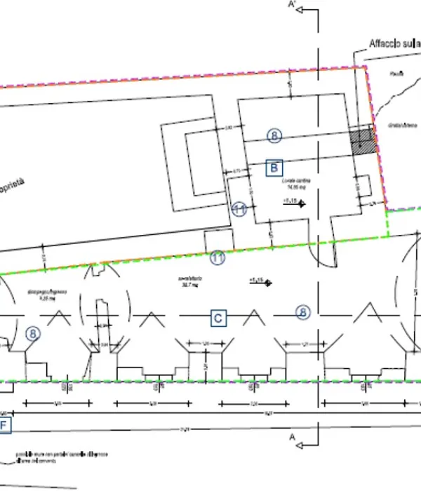
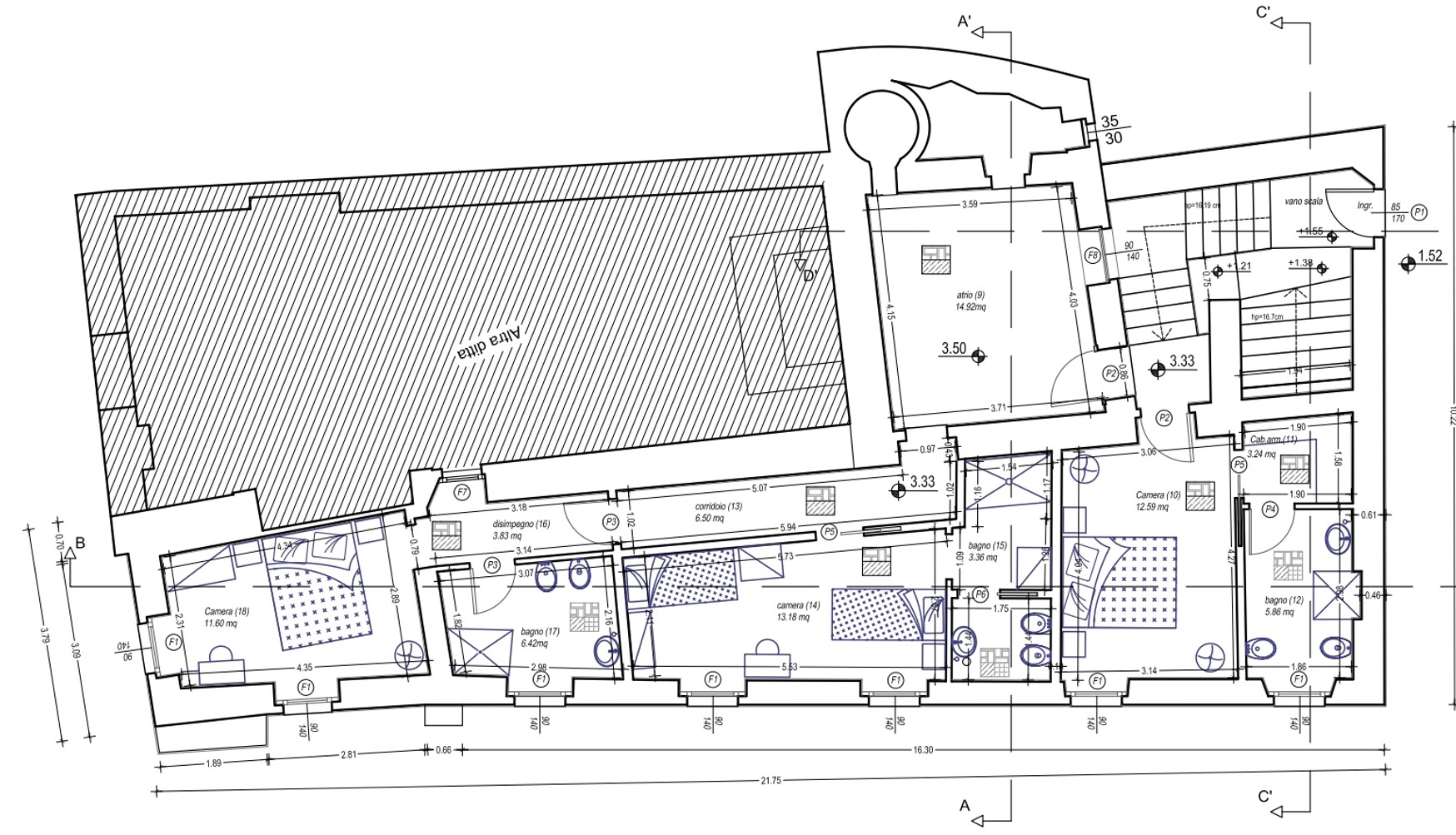
Intervento 1 - Ex Convento Madre Francesca Peticca
L’intervento più complesso riguarda la ristrutturazione e la totale riconve...
Loading
(Dicembre 2024) - Appalto integrato aggiudicato - verbale di consegna appalto prot. 36.353 del 29/02/2024 - 380 giorni a partire dal 29/02/2024 (progettazione def./esec. 80 gg e lavori 300 gg) - In data 20/05/2024 sono state consegnate le risultanze delle indagini geognostiche - verbale di consegna del servizio prot 73.601 del 02/05/2024 - durata servizio 20 giorni; in attesa del progetto esecutivo - Conferenza dei Servizi chiusa.
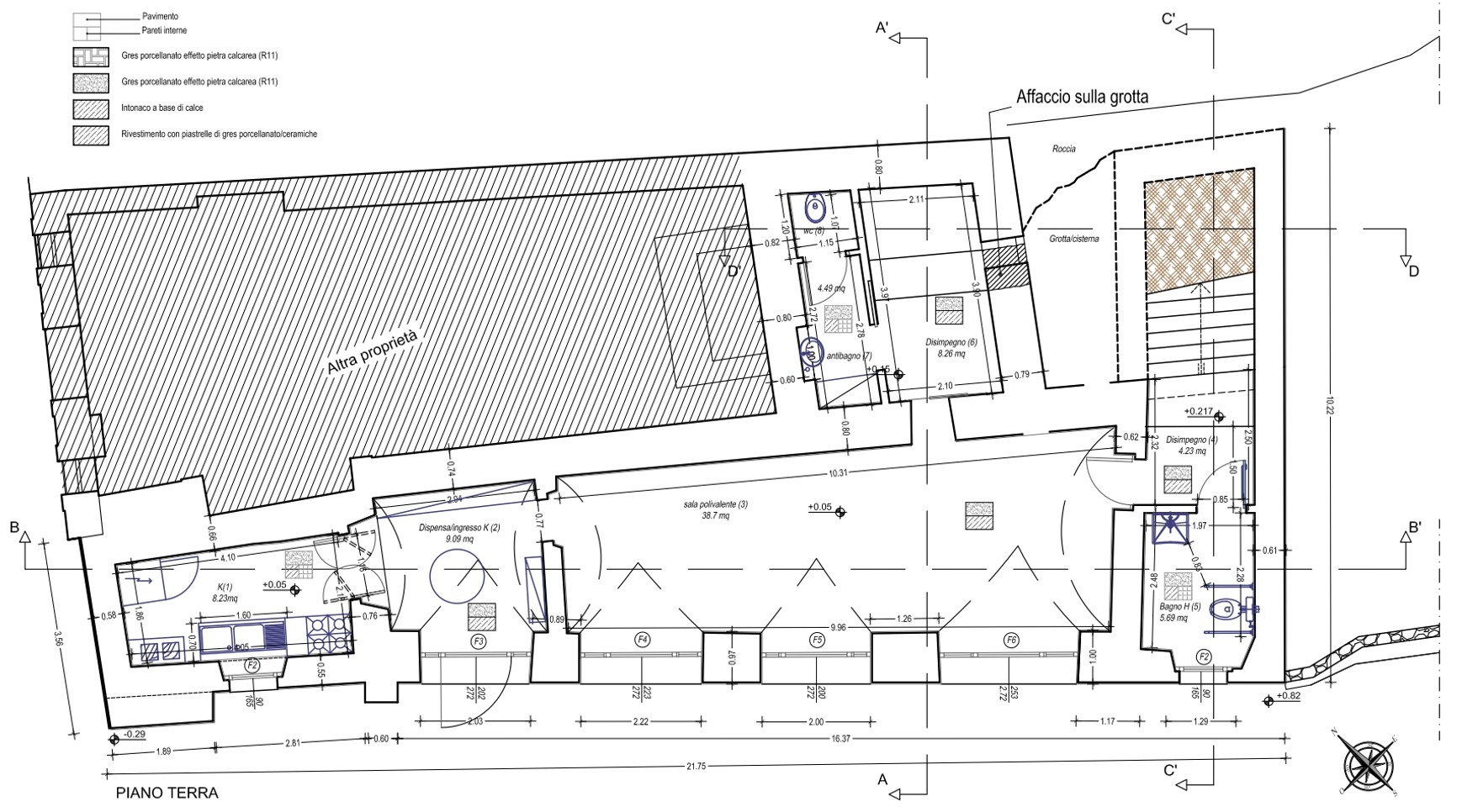
M.1 C. 3 I. 2.1 - 3.4.4_4 – EX CONVENTO DI SANT’ONOFRIO
Assegnazione: 1.500.000,00 € - Assegnazione + opere indifferibili: 1.500.000,00 € - CIG 9661348C93 - PFTE - Link alla procedura
Appalto integrato per l'affidamento del servizio di progettazione ed esecuzione lavori. Approvazione proposta di aggiudicazione
CUP F47B22000040004 - CIG B1715FD542 - AFFIDAMENTO DEL SERVIZIO DI INDAGINI GEOGNOSTICHE
Ammissione O.E. all'apertura busta tecnica e nomina commissione di gara relativamente alla scelta del contrante, attraverso aggiudicazione con criterio dell'Offerta Economicamente più Vantaggiosa.
L’intervento più complesso riguarda la ristrutturazione e la totale riconve...
Restauro e consolidamento delle mura e delle torri medievali con la valoriz...
Il palazzo storico occupa una superficie approssimativa di 220 metri quadra...
Appalto integrato aggiudicato - verbale di consegna appalto prot. 36.353 de...
La costruzione originaria appartiene al XII secolo, sull’architrave si legg...
L'intervento prevede l'adeguamento funzionale e impiantistico di un edifici...
L’intervento prevede la sistemazione delle pavimentazioni, l'installazione ...
L’intervento prevede l’utilizzo e l’organizzazione degli spazi aperti per l...
Per la rigenerazione del borgo di Cesi, a rischio abbandono, sono stati pre...
L'intervento prevede la riqualificazione urbana del borgo di Cesi
L’intervento riguarda un immobile di proprietà dell’Arcidiocesi di Spoleto-...
L’intervento ha la finalità di garantire accessibilità al borgo da parte de...
Il progetto prevede la realizzazione di un percorso meccanizzato che colleg...
Il borgo di Cesi è collegato con la località di Sant’Erasmo e Torre Maggior...
